Torna agli annunci

Fabbricato logistico - 3482L

Proponiamo in locazione un capannone indipendente di 2.000 mq con doppia banchina di carico, uffici su tre livelli e autorimessa, su un’area complessiva di circa 8.500 mq. L’immobile è perfetto per attività logistiche grazie ai tre accessi carrai su strade distinte e alla posizione strategica, a pochi minuti dal casello A4 Vicenza Ovest. Soluzione ideale per chi cerca spazi pronti all’uso e ottimamente collegati.

Rif. 5378

Fabbricato logistico - 3482L

Proponiamo in locazione un capannone indipendente di 2.000 mq con doppia banchina di carico, uffici su tre livelli e autorimessa, su un’area complessiva di circa 8.500 mq. L’immobile è perfetto per attività logistiche grazie ai tre accessi carrai su strade distinte e alla posizione strategica, a pochi minuti dal casello A4 Vicenza Ovest. Soluzione ideale per chi cerca spazi pronti all’uso e ottimamente collegati.

Rif. 3482L
Progetto
area logistica
Superficie
5378
Stato
libera

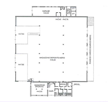
La nostra proposta verte sulla possibilità di acquisire in locazione un fabbricato a destinazione artigianale / industriale, configurato per ospitare attività di stoccaggio e logistica.

Il fabbricato è dotato di due fronti operativi, composti rispettivamente da una banchina di carico con 5 baie, ed una banchina di carico con portoni sezionali e rampe per furgoni.

L’interno del capannone è su due quote distinte, ovvero 6.50 mt quota rialzata e principale, quota 7.50 quota piazzale / parcheggi.

Il fabbricato sorge su di un’area di circa 8500 mq totali ed ha superficie di circa 2500 mq coperti così suddivisi:

2000 mq capannone operativo

260 mq per tre piani di uffici

250 mq di autorimessa.

L’area gode di tre accessi carrai su due distinte strade, rispettivamente posizionate ad ovest ed a est del lotto.

Situato a nord-ovest del centro città, è ben servito dalle principali arterie stradali della zona. La vicinanza alla tangenziale di Vicenza consente un rapido accesso al casello autostradale di Vicenza Ovest, sulla A4 Torino-Trieste, una delle autostrade più importanti per il traffico commerciale in Italia.

L'area è anche collegata alla rete viaria secondaria, che garantisce un accesso agevole ai comuni circostanti e alle zone industriali della provincia. I collegamenti urbani e interurbani permettono di raggiungere facilmente i centri limitrofi, rendendo l'indirizzo ideale per attività che necessitano di spostamenti rapidi e frequenti per la logistica e la distribuzione.

Altri annunci commerciali

Richiesta informazioni

Compila il form per richiedere maggiori informazioni: un nostro consulente ti contatterà al più presto!

CAPTCHA