Torna agli annunci

Superficie commerciale inserita in compendio polifunzionale

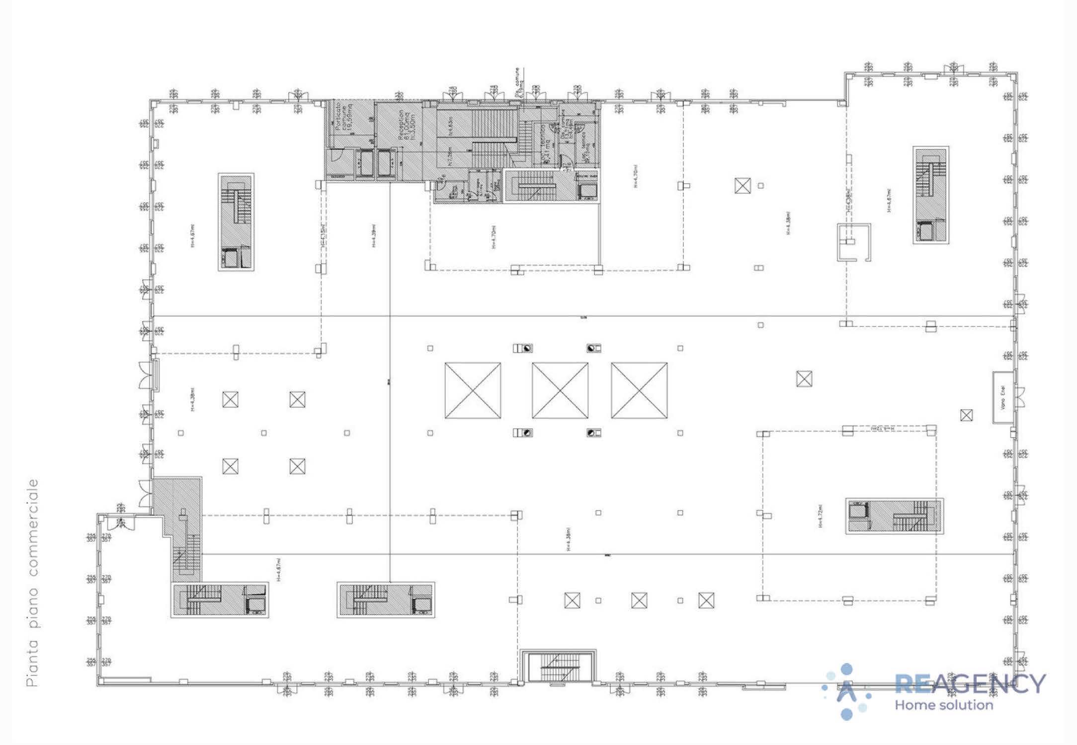
Complesso comprensivo di due piani interrati a uso autorimessa, piano terra commerciale di circa 4.300 mq allo stato grezzo e sei piani residenziali. Oggetto della nostra proposta è lo spazio al piano terra, eventualmente frazionabile.

Rif. 4.300 mq

Superficie commerciale inserita in compendio polifunzionale

Complesso comprensivo di due piani interrati a uso autorimessa, piano terra commerciale di circa 4.300 mq allo stato grezzo e sei piani residenziali. Oggetto della nostra proposta è lo spazio al piano terra, eventualmente frazionabile.

Rif. 3551C
Progetto
Locazione di superficie commerciale inserita in compendio polifunzionale
Superficie
4.300 mq
Stato
Locazione

La nostra proposta si riferisce alla locazione dell’intera superficie commerciale disponibile al piano terra.

La richiesta economica è pari a €.100/mq, riferita a immobile comprensivo di pavimentazioni e impianti.

Nel caso in cui l’immobile venga locato in condizioni tecniche difformi, con opere di completamento o personalizzazione a carico del conduttore, il canone sarà oggetto di adeguamento in diminuzione, da definirsi in funzione dell’entità degli interventi richiesti.

Altri annunci commerciali

Richiesta informazioni

Compila il form per richiedere maggiori informazioni: un nostro consulente ti contatterà al più presto!

CAPTCHA